An exclusive sanctuary of peace and tranquillity, Jumeira Bay Island is a vibrant tapestry of gardens, pools, and quiet boulevards, bathed in the unique natural light found on this coastline. In classic Bulgari style, the intricate patterns of the architectural coral project soft shadows onto the black and gold Paonazzo marble. Opulent Bulgari chandeliers positioned along the bay, create the impression of jewel-lined waters. The perfect backdrop to luxury living.
SUSPENDED BETWEEN SEA AND SKY
Sublime living spaces suspended between sea and sky. Reflecting the Bulgari values of unrivalled craftsmanship, thoughtful precision, and timeless elegance, carefully curated residences are separated by layers of architectural coral that filter light, air and the outside world. A precious natural material, coral is both a practical and metaphorical inspiration for the building design, providing protection, privacy, and peace. A statement home within any collection, the Bulgari Lighthouse provides the perfect retreat, cocooned in coral in the heart of an ever-changing natural canvas.
ARCHITECTURE IN HARMONY WITH NATURE
Designed by renowned architectural firm Antonio Citterio Patricia Viel, the building embodies Italian contemporary aesthetics while taking inspiration from the natural world and the beautiful surrounding landscape. Its elevated position and stunning views have inspired the building’s iconic design, which embraces contrast between sea and city, and sky and earth. Coral is integral to the design principles as both a practical and metaphorical inspiration, providing protection, privacy, and peace. Light and shade also have an important part to play, with internal and external details designed to be illuminated by the soft natural light that evolves from sunrise to sunset.
COCOONED IN CORAL
This statement building represents a bold, elevated presence within a low-rise resort. Exquisitely curated spaces are separated by layers of architectural coral that create stylish, livable outdoor spaces on every floor. A treasured natural material, coral is both a literal and metaphorical inspiration for the building design, providing protection, privacy, and peace. Bulgari Lighthouse – Cocooned in coral. RESIDENCES ARE SEPARATED BY HORIZONTAL LAYERS OF
ARCHITECTURAL CORAL THAT FILTER LIGHT AND AIR.
ELEVATED LIVING
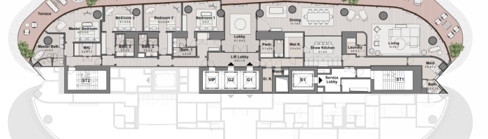
Divided into 4 and 5-bedroom penthouses, the Bulgari Lighthouse offers a choice of diverse living spaces and interior layouts. As the penthouses increase in size and scale, additional features
include a private pool and private lift access. Perched at the top with spectacular views of the Arabian Gulf is the Sky Villa Penthouse, the epitome of statement living.
A SUBLIME ARRIVAL
Discretely tucked away beneath the fragrant Mediterranean gardens, resident scan access a secure, air-conditioned garage with private parking spaces. Elevators deliver residents directly from their residence to a stylish private carpark entrance lobby. Despite the hidden nature of the garages, soft, natural light is designed to filter down from landscaped openings in the garden above. Residents can make use of a number of personal car spaces, dedicated electric charging points and storage facilities.
Compare listings
ComparePlease enter your username or email address. You will receive a link to create a new password via email.